Ersatzneubau A27 Brücke über die B71
Wulsdorf, Stadt Bremerhaven
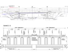
Neubau der Brücke 1037, die die A 27 im Bereich der Anschlussstelle Bremerhaven-Wulsdorf über die B 71 führt. Gleichzeitig wird auf der A 27 eine Fahrbahnerneuerung durchgeführt. Zusätzlich wird die B 71 saniert, inklusive der Erneuerung des parallel verlaufenden Radwegs.
- Ersatzneubauwerk
- Dauer: 2024 - 2025
- Ortbetonbauweise
- Bauvolumen: 9,5 Mio. €
Projektdaten
| Auftraggeber | Die Autobahn GmbH des Bundes, NL Nordwest, Hannover |
| Ausführung | ARGE Fritz Spieker GmbH & Co. KG, Oldenburg/ Matthäi Bauunternehmen GmbH & Co. KG, Bremervörde |
| Bauvolumen | 9,5 Mio. € |
| Bauzeit | 2024 - 2025 |
| Konstruktion | 2-Feld-Brücke, längsvorgespannte Straßenbrücke in 2 Bauabschnitten in Ortbetonbauweise |
| Länge | 34,00 m |
| Breite | 35,50 m |