Ersatzneubau BW 705 über die A7

Owschlag, Schleswig-Holstein

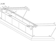
Das Bauvorhaben umfasst den Ersatzneubau der Brücke BW 705 sowie den Rückbau des bestehenden Bauwerks. Die Überquerung der BAB 7 erfolgt dabei an der Anschlussstelle Nr. 7 „Owschlag“. Besonders auffällig ist die Schiefwinkligkeit des Bauwerks aufgrund des geringen Kreuzungswinkels. Der Ersatzneubau wird als zweifeldriges Brückenbauwerk in Stahlverbundbauweise (VFT®) ausgeführt

  • Zweifeldriges Brückenbauwerk
  • Stahlverbundbauweise
  • Erhebliche Schiefwinkligkeit

Projektdaten

Auftraggeber Die Autobahn GmbH des Bundes, NL Nord, Hamburg
Ausführung Fritz Spieker GmbH & Co. KG
Bauvolumen 8,25 Mio. €
Bauzeit 2023 - 2025
Konstruktion 2-Feld Brückenbauwerk in Stahlverbundbauweise (VFT-Träger)
Gesamtlänge 75,35 m
Gesamtbreite 17,55 m

Zurück zur Übersicht

AKTUELLES